山東天合環境科技有限公司
聯系人:李經理
聯系電話:13276363035
QQ:867220900
公司地址:山東省濰坊市高新區光電路155號光電產業加速器(一期)
PRODUCT
聯系人:李經理
聯系電話:13276363035
QQ:867220900
公司地址:山東省濰坊市高新區光電路155號光電產業加速器(一期)
更新時間:2025-09-17 作者:天合環境科技有限公司
1、簡介
天氣環境條件監測是高速公路科學運營的一個重要依據,雨、雪、霧、積雪、結冰等情況對高速公路的運營都有直接的影響。據統計,在冬季冰雪路面對公路交通安全影響最大,成為冬季交通安全的第一殺手。它們對高速公路的影響主要有安全影響:在冰雪氣候條件下,高速公路很容易引發多車相撞的惡性交通事故;經濟效益影響:交通事故不但造成了重大的人員傷亡,還帶來另外重大的經濟損失。
近年來,我國發生了多起由惡劣天氣條件引起的特大交通事故,給人民的生命和財產造成極大損失,也引起了相關部門的關注,經調研發現,冰雪路面交通事故發生主要原因是駕駛員對道路環境嚴重程度估計不足,車輛速度過快、路面濕滑、車間距保持不夠引起的。如果駕駛員對道路氣象通行條件有充分的了解,獲取了現場氣象信息,那么事故發生的概率會明顯降低,這也就是我們要在高速公路設置氣象監測及現場預警發布系統的原因。其設置目的:能夠精準的提供結冰位置,結冰時間,結冰程度等信息,實現對保障道路內受影響道路的自動報警、預警功能,使道路安全管理部門及時準確了解道路氣象信息,從而保障行車安全。
該系統采用組網監測的運行方式,連續獲得沿線多點的氣象及路面狀況信息情況,反饋給監控中心,并將檢測數據與預定的判定條件比較,以確定是否有雨雪、結冰等惡劣天氣;在確定惡劣天氣的情況下通過檢測數據與預定指標庫比較,確定出預警等級和告警提示;最后,再根據指標控制級別從預定策略庫中調用對應的控制策略來應對惡劣天氣對高速公路造成的影響,從而做到全天候保障高速公路的運行。
2、系統組成與工作原理
本系統組成:
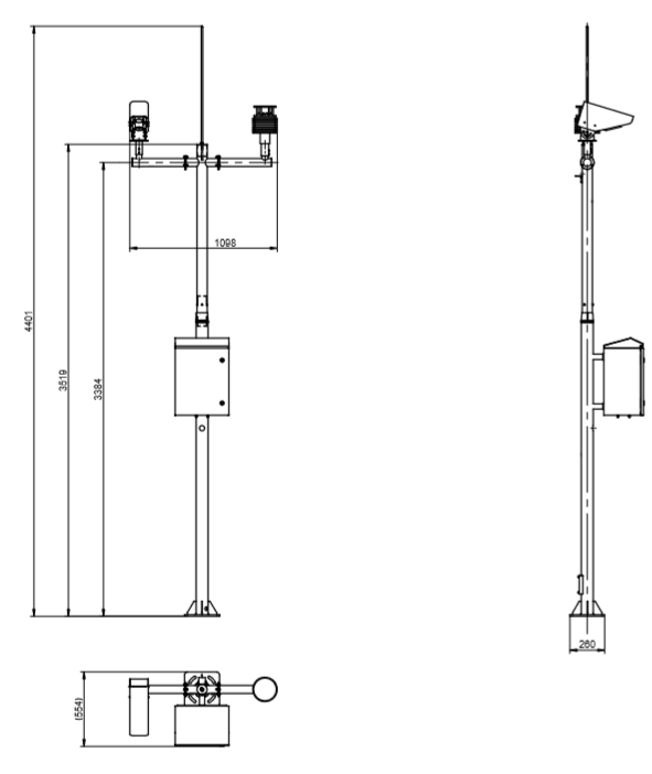
交通氣象監測站:包括:溫濕風壓雨自動氣象站、非接觸式遙感式路面狀況檢測儀、綜合氣象數據采集儀、設備結構立桿、供電及采集控制箱等。
工作原理:監測站可以測量大氣溫度、大氣濕度、風向、風速、氣壓、雨量、遙感路面狀況(路面溫度,路面狀態:干燥、潮濕、積水、結冰、冰水混合物等)等氣象要素,以此為依據,判斷相關大氣物理變量因素的變化趨勢,從而預警預報出當時天氣狀態和變化;交通氣象監測站將實時監測數據自動上傳至交管部門監控中心,監控中心配置相應交通氣象監測平臺軟件,軟件平臺進行多個站點自動氣象數據監測,數據分析研判,道路氣象預警,道路結冰判斷等監測工作,軟件多模塊協同工作,并由工作人員隨時調用歷史數據及日志記錄查詢,由此指導發出決策和應急預案。

3、主要技術指標
測量要素 | 測量范圍 | 分辨率 | 準確度 | |||
氣溫 | -40~+80℃ | 0.1℃ | ±0.2℃ | |||
相對濕度 | 0~100% | 0.1% | ±2% | |||
風向 | 0~360° | 0.1° | ±1° | |||
風速 | 0 ~70m/s | 0.01m/s | ±0.1m/s | |||
降水量(mm) | 0-10mm/min | 0.01mm | ±0.4mm(累計雨量<10mm); | |||
氣壓 | 150 ~1020hPa | 0.1hPa | ±1 hPa | |||
路面溫度 | -40~+80℃ | 0.1℃ | ±0.5℃ | |||
路面狀況 | 水:0—10mm; 冰:0—10mm; 雪:0—10mm; | 0.01mm | 0.82~0.7 | 0.7~0.6 | 0.6~0.3 | 0.3~0.01 |
良好 | 濕滑 | 很滑 | 極滑 | |||
濕滑系數:0-1 | 0.01 | 與路面摩擦系數評價相等 | ||||
可分辨出路面狀態:干燥、潮濕、積水、結冰、冰水混合物 | ||||||
綜合氣象數據采集器 | 1、采集器可接收氣象監測設備的數據信息,整合處理后,發送給系統平臺; 2、能指示并上報各傳感器的工作(通訊)狀態; 3、時鐘準確度:月累計誤差<30秒; 4、供電方式:DC 12V; 5、功耗:小于2W 。 | |||||
第二部分 交通氣象監測站技術方案
1、交通氣象監測設備簡介
1.1產品概述
交通氣象監測站主要利用綜合采集控制技術、計算機軟件技術、通訊技術等技術對多種氣象傳感器從結構到系統組成上進行集成化應用。能夠連續獲得交通沿線的氣象信息,能夠對風速、風向、溫度、濕度、路面狀況、路面溫度等高速公路多個氣象要素進行實時檢測,通過遠程傳輸完成各類數據的匯總并及時傳送給交通部門,為交通相關部門做好各沿線交通氣象保障服務提供第一手資料,以此為基礎,可為高速公路安全主管部門和人們的出行提供及時的氣象信息服務。
交通氣象監測站采用的氣象傳感器包括:濕溫風壓一體化微型氣象傳感器、激光遙感式路面狀況傳感器等,還包括專用綜合氣象數據采集器、立柱支撐結構、供電通信控制箱等單元。
1.2交通氣象監測站功能
(1)能夠對大氣溫度、大氣濕度、風向、風速、氣壓、雨量、遙感路面狀況(干燥、潮濕、積水、結冰、冰水混合物)、路面溫度、濕滑系數等氣象要素進行全天候檢測;
(2)主動采集各氣象要素數據,對采集的數據進行預處理和算法處理,對采集數據進行相關統計形成逐分鐘的值并定位存儲在監測站存儲器內;
(3)自動上傳監測數據,上傳頻率為1分鐘;
(4)氣象監測站提供RS232、RS485、RJ45網口、或GPRS無線等通訊方式;
(5)系統供電方式:220V交流市電或12VDC太陽能供電。
1.3交通氣象監測站特點
(1)監測站采用模塊化組裝結構設計,緊湊小巧,各傳感器尺寸小、重量輕,安裝方便;
(2)采用光電測量技術進行能見度、當前天氣現象和路面狀況測量,完全通過遙感測量,不需要破壞路面,省時省力,免維護;
(3)采用超聲波測量技術進行風速風向測量,無活動轉動部件,完全免維護長周期測量,適應高速公路惡劣環境應用;
(4)各傳感器結構材料為高質量硬質鋁材,表面進行了陽極鈍化處理,并進行多道噴漆(高溫烤漆)保護;所有螺釘均選擇耐腐蝕不銹鋼螺釘;
(5)殼體內部是密封的,達到了IP65防護等級,具有野外惡劣氣候適應性;
(6)系統功耗低,小于8W,市電或太陽能供電均可;
(7)系統具有防雷措施,其通信接口和電源接口均具有防雷設計,可將雷擊損害降到最低。
1.4主要設備技術指標
①溫濕雨風一體化六要素氣象傳感器

六要素一體氣象站是一種測量多要素氣象要素的專業級傳感器,可同時測量大氣溫度、大氣濕度、風速、風向、氣壓、雨量等六種主要氣象要素。其特點是精度高,響應時間快,串口輸出,方便用戶直接通過PC或外接儀器進行測量。
產品特點:
?堅實耐用的超聲波風設計
?整個系統免維護,便于安裝
?系統協議公開
?標準RS485輸出
?擁有大容量內存及豐富系統指令
技術指標:
規格 | 直徑約150 毫米, 高度約260 毫米, 重量約 0.5 千克 |
溫度 | 測量范圍-40~80°C |
相對濕度 | 測量范圍0~100% 相對濕度 |
氣壓 | 測量范圍300~1100 百帕 |
風向 | 原理超聲波 |
風速 | 原理超聲波 |
雨量 | 光學雨量原理 雨量測量范圍 0~4mm/min;雨量精度 ±0.4mm(累計雨量<10mm); |
基本信息 | 接口RS485, |
②遙感式路面傳感器

采用多光譜遙感技術非接觸準確檢測出道路表面結冰、積雪和積水的厚度。設備安裝不需要封閉道路、不需要切割路面,安裝工作既安全又方便。維護量少,是道路氣象系統組成中一項理想選擇。它既可以安裝在現有的氣象站上,也可以安裝在路面視野無遮擋的其他建筑物上,為道路管理部門提供準確的監測數據,在道路安全出現險情之前,采取響應措施。能夠適用于高速公路路面、橋面、事故多發地區、雨雪多發地區、坡道轉彎區域等關鍵路段的監測。
功能
?檢測路面積水、積雪、結冰厚度
?遠距離遙感檢測路面狀況
?非埋入式安裝快捷簡便
?維護成本低
應用
?橋面(高海拔橋梁、跨湖泊橋梁、城市高架橋、立交橋等)
?事故多發區域
?車流量大的區域
?雨雪多發地區
特點
?遠距離測量路面積水、冰和雪
?測量路面狀態
?測量積水、冰面、濕滑程度
?非埋入式設計、抗銹蝕
?紅外檢測最遠18米
?無需封閉車道,安裝維護簡單
?堅固設計,全天候測量
技術指標
監測距離 | 2-18米 | |||
檢測直徑 | 大于25cm | |||
角度 | 30-90度 | |||
測量原理 | 紅外多光譜光學 | |||
電源輸入 | +12VDC (允許輸入范圍:+11V—+24V) | |||
最大功耗 | 平均4W,非加熱狀態:≤3W 加熱開啟狀態:≤6W | |||
工作溫度 | -40~+60℃ | |||
工作濕度 | 0~100% | |||
路面狀態 | 干燥,潮濕、積水、結冰、積雪、冰水混合物; | |||
測量厚度 | 水:0—10mm | |||
冰:0—10mm | ||||
雪:0—10mm | ||||
分辨率:0.01mm | ||||
濕滑程度 | 范圍:0—1;與路面摩擦系數評價相等 | |||
0.82-0.7 | 0.7-0.6 | 0.6-0.3 | 0.3-0.01 | |
良好 | 濕滑 | 很滑 | 極滑 | |
路面溫度 | 范圍:-40~+80℃;精度:±0.5℃,分辨率:0.1℃ | |||
通訊接口 | RS485(支持多機通信)、RS232; 波特率范圍: 9600bps(1200-19200bps可設置) | |||
鏡頭污染檢測 | 光學鏡頭的污染等級測量及內部自動污染補償 | |||
路面 | 混凝土、瀝青路面 | |||
防護等級 | IP65 | |||
安全 | 無安全問題 – 紅外遙感測量技術 | |||
③綜合氣象數據采集器

氣象采集器是交通氣象站的核心,由硬件和嵌入式軟件組成;采集器集成了多種氣象環境測量要素的多種信號,集成高速高精度處理芯片,采用了高精度24位AD采樣,多參量采集一體技術,具備多路數字與模擬氣象信號采集功能,信號采集精度達到0.1%。采集器具備以下功能特點:
(1)實時數據采集。可采集的實時數據包括:溫度、濕度、(氣壓)、風向、風速、降雨量、能見度、天氣現象、路面狀況等傳感器數據。
(2)實時數據處理,能指示并上報各傳感器的工作(通訊)狀態。
(3)具備實時時鐘,能與監控中心對時,時鐘準確度:月累計誤差<30秒;
(4)通過RS485/232/TCP等進行數據輸出,具備RS232、RS485有線、RJ45網口或GPRS/CDMA無線通信方式
(5)系統有雷電保護功能。
(6)具備完備的狀態指示及數據報警功能。
(7)可連接擴展模塊增加對外接傳感器的監測。
(8)具備交直流電源配置功能。如果用戶配置太陽能電池供電,設備內部可配置充放電控制器和蓄電池,設備完全掉電的情況下,蓄電池保證設備運行45天。
④供電及采集控制箱

供電及采集控制機箱包含配電供電模塊、充放電控制、防護機箱及斷路器、空開、防雷等。
(1)供電方式:DC 12V;可配置220V市電或太陽能供電系統;
(2)備用電源:如果用戶配置太陽能電池供電,內部配蓄電池;
(3)輸出電壓:12VDC;
(4)標稱容量: 200Ah以上;
(5)持續輸出時長:1080小時(45天)以上;
(6)工作環境溫度:-40℃~+55℃;
(7)工作環境濕度;5%~95%RH;
(8)采集控制箱內安裝有防雷單元,含開關、空氣開關、及電源防雷器,主要解決機箱內部電器對感應雷的防護問題;
(9)采集控制箱具有防盜、防水、散熱、密封、防塵、抗高溫及低溫等可靠的安全防護性能設計。
⑤設備結構立桿
監測站結構立桿支架由主立桿、傳感器支架等組合,含基座和連接件,材質為不銹鋼。主桿總高度≥3m,并配備避雷針;主桿、支架及連接件具備防拆卸、移動等安全保護要求。

(1)包含立柱支架、地腳法蘭、地基預埋件及電氣輔材;
(2)立柱支架由主立桿、傳感器支架等組合、基座和連接件組成,并配備避雷針等防雷裝置;
(3)主立桿桿及支架組合整體采用烤漆(噴塑)處理,外表面平整、防銹蝕;
(4)采用集成式橫臂支架,減少光路誤差;
(5)鋼結構采用的鋼材符合GB/T700-1988國家標準要求,采用優質鋼材;
(6)結構組件連接、緊固螺釘配套不銹鋼標標準件;
(7)主桿總高度≥3m;
第三部分 系統實施技術方案
1、概述
系統充分利用了一系列技術先進、品質可靠、準確度高的氣象傳感器通過組網方式采集交通沿線實時氣象環境數據,為交通安全提供氣象預警服務,系統供電單元為整個系統提供持續的電力,解決野外、山區無市電供給的問題,無線通訊模塊可將現場氣象數據傳送至監測中心,由監測中心統一分析決策。從而為高速公路管理提供了一種先進的自動化輔助管理手段,保障惡劣天氣條件下交通安全運營。
2、配置及選型
依據高速公路所經地的天氣氣候特征,設計多要素氣象監測,包括:風速、風向、溫度、濕度、路面狀況等,多要素氣象站主要放置在具有地區代表性氣候特點的地點。充分發揮各檢測站作用,保障道路的正常運營。
考慮供電、防護、維修等因素。氣象監測站以靠近有人值班的收費站、服務區、養護區、路政隊等地布設為主,兼顧氣候特點,在災害性天氣頻發路段適當加密布設監測站。有配點的位置以交流供電,無配點的地點選用太陽能供電。
交通氣象監測站點選取原則:監測站的地點選取至關重要。配置多要素氣象監測站的選址既要能反映當地公路的氣象狀況,也要能代表周邊一定范圍內的自然氣候狀況的地點。監測站周邊不應有高大林木、大范圍稠密的灌木叢林和建筑物的阻擋;不受煙火源的污染等。并且應便于提供電源,通訊線路;對于采用GPRS/CDMA移動網進行無線通訊方式的設備,應選取通訊網絡信號正常的地方。氣象監測站布設應盡量考慮設在氣象環境比較惡劣的地方,如:環境濕度高的水網地區、易產生橫切風的地方、易產生局地小氣候的谷地、山崖地區等。
3、安裝總要求
觀測站主控機箱內部設有弱電防雷保護系統,觀測站頂部需要安裝避雷針,并與基礎防雷接地系統有效連接;
氣象傳感器、電源、無線通訊等線纜利用支架的金屬管內部穿線,在觀測站安裝完畢后,不能從外部看到裸露的電源或信號線纜,蓄電池放置到采集箱中;
觀測站懸掛的機箱要求各個功能模塊單元布局合理,符合電磁兼容要求,散熱性能好,具有一定的密封、安全防盜、防塵防水等性能。
4、傳感器安裝高度和布設
監測站各傳感器安裝高度為3±0.5m,溫濕風壓一體傳感器和路面遙感檢測儀分開安裝,防止相互干涉。
5、立桿和支架要求
監測站支架由主立桿、傳感器等支架組合、基座和連接件組成,材質主要為不銹鋼、鍍鋅鋼材。
主桿、支架及連接件具備防拆卸、移動等安全保護要求。
主桿及支架組合整體的外部均采用乳白色噴涂處理。
6、線纜布設要求
監測站的線纜布設的基本要求是從外表上看不到電源線和信號線。所有線纜從支架、立桿、機箱等金屬管內布線,達到隱蔽、保護、美觀、防盜割、防雷電等效果。
各傳感器主要布設在立桿的支架上,電源、信號線均通過支架、立桿的金屬管內布線到機箱內,接頭處設有防水和隱蔽裝置。
7、機箱要求
機箱配有防水及遮陽罩,具有散熱、密封、防塵等功能。
進出機箱的所有電源線、信號線等必須從機箱背面直接進入立桿金屬管內,接口密封良好,達到防水、防塵的要求。
機箱須裝有鎖定裝置,配有防盜鎖具,具有防盜、防破壞能力。
機箱要求懸掛在主支撐桿上,從機箱內部用緊固螺栓與立桿固定,實現安全防盜。
機箱內須配有防雷模塊裝置,達到防雷標準規范要求。
機箱外部采用乳白色噴涂處理。
8、系統供電
分為兩種方式:220VAC交流市電和12VDC太陽能直流供電。
原則上,盡量使用交流市電,在特殊情況,市電無法達到的地方可使用太陽能供電系統。
太陽能供電系統要求:在連陰雨天,能滿足設備持續工作5天(按需配置)。
9、通訊
推薦采用現有的GPRS移動網。
由于高速公路電纜鋪設改造費用大,而GPRS移動網覆蓋范圍及穩定性已經非常完善,所以系統數據推薦采用GPRS無線數據傳輸方式。
10、防雷接地
氣象監測站各傳感器通常安裝在3米立桿上,常常為附近最高點,易引雷。為確保人身、設備安全,根據實際情況,設計如下方案:
具備良好的防雷功能,包括防護直擊雷和感應雷;
設備安裝時應良好接地,接地電阻小于4Ω;
監測站立桿頂部應安裝有避雷針,基礎底部應有接地網;
在機箱內應安裝有防雷單元,主要解決機箱內部電器對感應雷的防護問題。
11、安裝基礎要求
承載監測站的基礎,選擇硬質基礎平臺上安裝,對需要現場預制基礎平臺,須參照有關基礎施工要求進行設計和施工。
基礎平臺施工要求符合國家有關防雷規范。

第四部分 技術優勢及服務優勢
1.技術優勢
1)產品質量優勢
交通氣象監測站及其傳感器均通過了國內權威檢測機構的計量檢測,特別是各傳感器的測量準確值(精準度)獲得了交通部和氣象局的計量檢定證書;
整套系統包括結構、電器、軟件均采用模塊化設計,便于后期維護和功能擴展。
2)服務優勢
我公司產品均為國產化具有自主知識產權的產品,符合交通行業標準和規范,由于我國環境污染嚴重,交通壓力大,惡劣天氣對交通安全的影響尤其嚴重,因此迫切需要能符合國情、服務迅速的監測系統產品,而進口產品許多在國內產生“爆表”等一些水土不服的現象,同時,價格較貴,一旦發生故障,服務很難迅速跟上,同時,一些國防民生領域,為了保密,也需要對進口產品進行一定的限制甚至限購,因此,我們承諾:
(1) 本地化服務隊伍,7×24小時及時響應。
(2) 質保期內壞件設備如在2天內不能排除故障,直接更換。
(3) 定期進行硬件升級,發揮最優性能。
 文章來源:http://www.kfzds.com/jjfa/417.html